Faház pihenőház Designhaus Weka412
Ártartomány: 3790000 Ft - 4800000 Ft
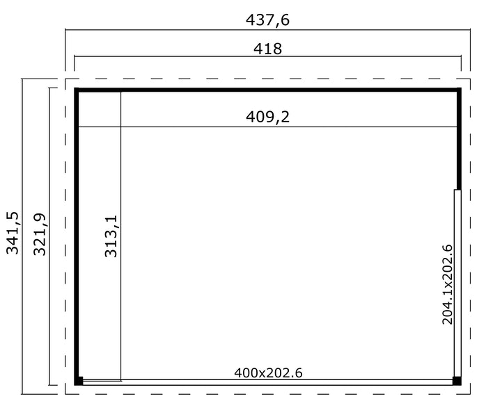
Pihenő faház 418 x 322 cm méretben. Home office faház építés
Kiváló minőség, tartósság
- Szaktanácsadás és ügyfélszolgálat
- Országos kiszállítás
- Ingyenes átvétel a raktárban
Faház pihenőház Designhaus Weka412
44 mm vastag gerendavázas faház, minimál stílusú pihenőház – béke és nyugalom a kertben.
Weka Designhaus 412-es pihenő faház / home office részletes bemutatása:
Faház külső sarok mérete 418 x 322 cm (alapozási méret ).
- 44 mm vastag dupla nútféderes gerendavázas falszerkezet.
- Tetőmagasság 239 cm; eresz túllógások körben 10-10 cm.
- Üvegajtók: 2db elhúzható ajtóval.
- A faház választható natúr kezeletlen vagy antracit-szürke gyári festéssel, oldal terasztetővel vagy terasztető nélkül is.
- A választható terasztető jobb illetve bal oldalra is egyaránt telepíthető.
- A választható terasztető mérete 300 x 322 cm.
- Ablakkeretek színe: RAL 7016 (antracit).
- Szaunaház padlózata 18 mm vastag; impregnált párnafákra szerelve.
- Tető héjalása 18 mm vastag lambéria + KSK-M ragasztható hőtükrös tetőfólia opcionálisan (4, illetve 7 csomag), ide kattintva rendelhető és ugyanitt olvashat a tetőfóliáról részletesen.
- Orombádogot; esővízcsatornát; valamint a padló kezeléséhez padlóolajat igény szerint tudunk a faházhoz szállítani.
Gyári festés esetén:
Felejtse el a faház kézi festését, és bízzon ipari faanyag megőrzési folyamatunkban. Ez az egyedülálló felületkezelő rendszer értékes időt és pénzt takarít meg a megrendelőnek. A környezetbarát vízbázisú lazúr ideális professzionális kültéri használatra, és tartósan megvédi a faház alapanyagát. A helyszínen már nem kell festeni a faházat ha a gyári előre lefestett faanyagot választja.
Csak hagyd, hogy elméd elkalandozzon! Élvezd a gondtalan nyugalmat, valamint a csodálatos napsütést a kertben.
Amennyiben szaunaházat szeretne építeni/ építtetni úgy javasoljuk ennek a modern szauna kabinunknak a beépítését
A helyszíni összeépítés és beüzemelés munkadíjára árajánlatot a helyszíntől és a kiválasztott faház méretétől függően, egyéni megbeszélés alapján tudunk adni.
További információk
| Tömeg | 1138 kg |
|---|---|
| Méretek | 418 × 322 × 239 cm |
| Szín | Antracit szürke RAL7016, natúr kezeletlen faanyag |
| Terasszal | Terasz oldaltetővel 300cm, Terasztető nélkül |
Érdekelhetnek még…
Ajánlott kiegészítők
-
Gyártó: faház kiegészítők
Esővíz elvezető csatorna faházakhoz
Ártartomány: 36000 Ft - 144000 FtOpciók választása Ennek a terméknek több variációja van. A változatok a termékoldalon választhatók ki -
Gyártó: faház kiegészítők
Faházak tetőfedéséhez orombádog
Ártartomány: 35000 Ft - 84000 FtOpciók választása Ennek a terméknek több variációja van. A változatok a termékoldalon választhatók ki -
Gyártó: Onduline
Azonnal elvihető
Tetőfólia BFX ragasztható tetőfedés faházra
28500 FtOpciók választása Ennek a terméknek több variációja van. A változatok a termékoldalon választhatók ki -
Gyártó: Remmers
Azonnal elvihető













Faház_Designhaus Weka41279_termékadatlap_antracit









Értékelések
Még nincsenek értékelések.