Terasztető Skanholz 201 garázstető 4méret
Ártartomány: 1130000 Ft - 1555000 Ft
Terasztető nyitott garázs Skanholz 201-es típus
Kiváló minőség, tartósság
- Szaktanácsadás és ügyfélszolgálat
- Országos kiszállítás
- Ingyenes átvétel a raktárban
Terasztető Skanholz 201 garázstető 4méret
Terasztető vagy szabadon álló garázstető Skanholz 201-es típus
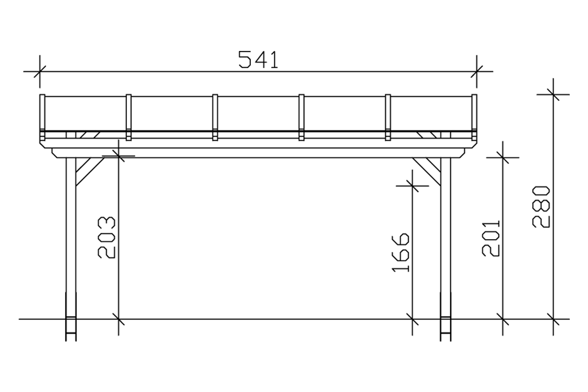
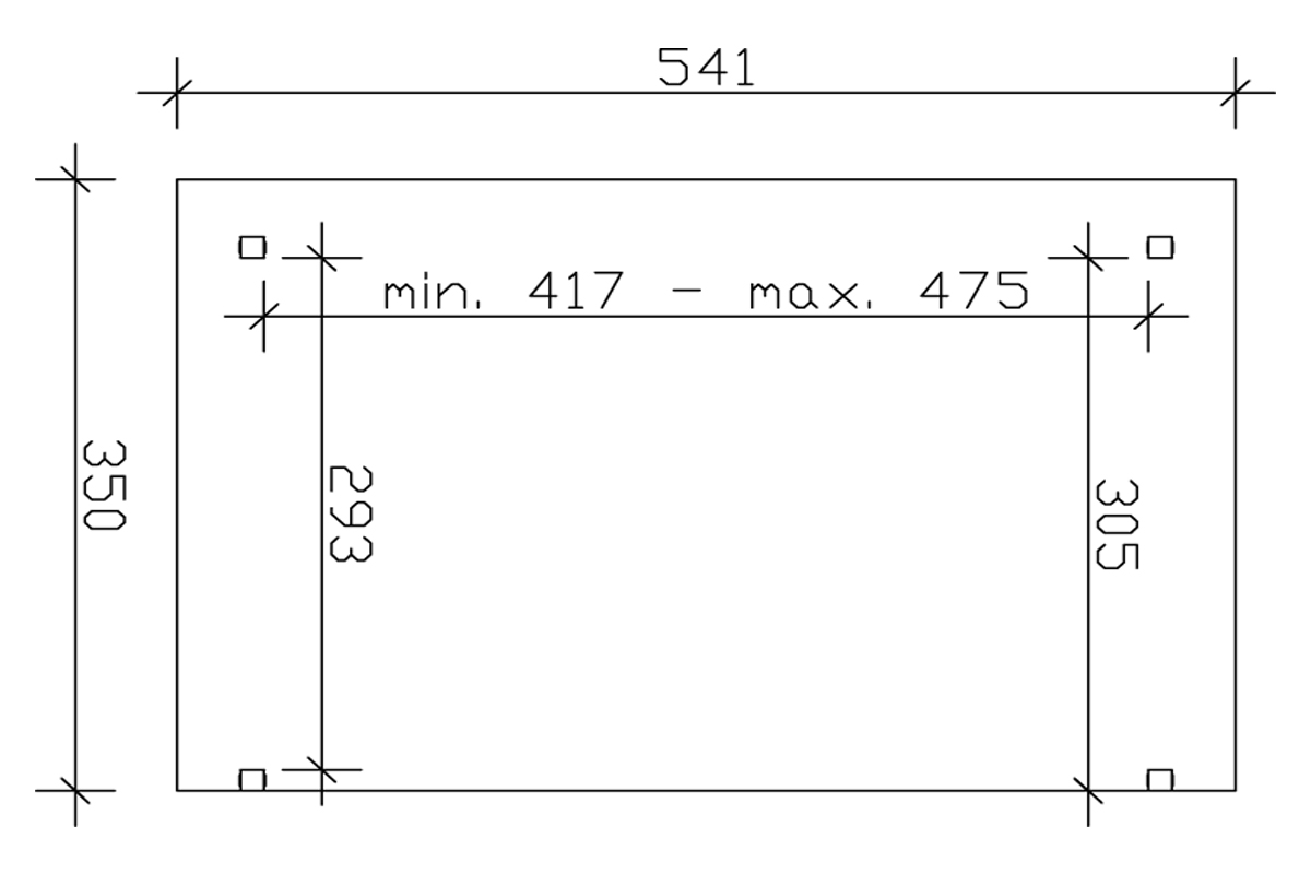
Skanholz 201-es terasztető paraméterei 541cm-es széles változatban:
- Terasztetőként vagy szabadon álló nyitott garázsként is használható polikarbonát tető 4 db pilléren 4 méretben rendelhető
- 541 x 400 cm vagy 541 x 350cm vagy 541 x 300cm vagy 541 x 250 cm teljes tetőfelülettel is rendelhető, amely terasz tetőként vagy nyitott garázsként is használható. A fenti fotó melletti választógombbal tudja kijelölni a kívánt méretet.
- Átjárási magasság elöl, azaz az tető legalacsonyabb/ legmagasabb magassága 241/290 cm
- Terasztető tartópilléreinek szelvénymérete 120 x 120 mm ragasztott, tömbösített minőségi alaktartó északi fenyő alapanyagból
- A faanyag natúr, kezeletlen ragasztott faanyag, melyet szakszerűen le kell festeni a tartósság érdekében
- Remmers minőségi festékeink közül ide kattintva választhat: Festékek, kiegészítők
- Terasztető felülnézeti mérete (szélesség x mélység) 541*400 cm vagy 541*350 cm vagy 541*300 vagy 541*250cm (azaz a teljes felülnézeti tetőméret) a választott mérettől függően.
- Kész terasztető építés polikarbonát tetővel előregyártott ragasztott alaktartó faanyagból
A ragasztott magas minőségű faanyagnak köszönhetően a gerendák, pillérek kevésbé hajlamosak a vetemedésre és nem fognak megrepedni sem. A ragasztott anyagok szebb kidolgozást, simább, repedésmentes, igényes felület kialakítását teszik lehetővé.
- TETŐHÉJALÁS: 16 mm vastag, polikarbonát borítás az összes szükséges alumínium profillal együtt. A polikarbonát tető színe lehet: víztiszta (átlátszó); bronz; vagy opál is a választásnak megfelelően.
- Statikai számítás alapján a hóteherbírás 100 kg/m2; TÜV minősített, bevizsgált, előre gyártott szerkezet
Szüksége lesz még: 4 db 120 mm-es H-vasra a pillérek talajhoz rögzítéséhez: Festékek, kiegészítők vagy betonozás nélkül is tönkalapozható talajcsavarokra.
A terasztető talajhoz rögzítéséhez szükséges elemek (H-vasak vagy talajcsavarok, dübelek, falsík menti vízszigetelés) és az esetleges korlátok, padló burkolatok nem részei a csomagnak !
Kérjen ajánlatot helyszíni telepítésre, pontos szállítási cím és egy helyszíni fotó megküldésével.
Festés tetszőleges színre, 2 rétegben Remmers minőségi német lazúrral. Kérjen ajánlatot!
5-év gyári garancia ! TÜV által minősített termék.
Nem mindenki kertjében fér el azonban egy garázs, az meg még kevesebb esetben oldható meg, hogy a házba építsük be az autó tárolására szolgáló helységet. Ezekben a helyzetekben lehet megoldás a nyitott garázs, illetve az a terasz tető, ami nem foglal akkora helyet, mint a zárt, mégis megvédi az autót az esőtől, jégesőtől, hótól, és a madárürüléktől is.
Terasz építés garázs építés igény szerint akár A-tól Z-ig !
További információk
| Tömeg | 550 kg |
|---|---|
| Méretek | 541 × 400 × 290 cm |
| Méret | 541 x 250 cm, 541 x 350 cm, 541 x 300 cm, 541 x 400 cm |
Érdekelhetnek még…
Ajánlott kiegészítők
-
Gyártó: Krinner
AKCIÓ!Azonnal elvihető
Talajcsavar pillérrögzítő
Original price was: 15500 Ft.13900 FtCurrent price is: 13900 Ft. -

-
Gyártó: Remmers
Azonnal elvihető














DB_Sanremo_Terasz tető méretek









Értékelések
Még nincsenek értékelések.