Zárt garázs fából Falun autóbeálló 393x549cm
Ártartomány: 1950000 Ft - 2350000 Ft
Nyeregtetős zárt garázs 393 x 549 cm garázs ajtóval vagy ajtó nélküli Falun típus
Autóbeállók gyártása fából A-tól Z-ig.
Kiváló minőség, tartósság
- Szaktanácsadás és ügyfélszolgálat
- Országos kiszállítás
- Ingyenes átvétel a raktárban
Zárt garázs fából Falun autóbeálló 393x549cm
Zárt garázs építés Falun egyállásos kivitel
Nyeregtetős zárt garázs előregyártott Falun 1 autó részére
- Zárt garázs alapozási mérete: 393 x 549 cm natúr, kezeletlen fenyő
- Tömörfa oldalfal panel-szerkezet 8×8 cm-es gerendavázon. A garázst garázsajtó nélkül és garázsajtóval is meg tudja rendelni. Kérjük adja meg a fenti választó gomb segítségével a rendelni kívánt kialakítást.
- (rendelhető nagyobb 579 x 549 cm kétállásos zárt gépkocsi tároló is, Falun 2)
- Ideiglenes bitumen-tetőborítással, alap esetben zsindely nélkül
- Skanholz garázs gerendaváz fala telített/konzervált párnafa faanyagra (60 x 60 mm) épül:telített faanyagról bővebben ide kattintva olvashat
- Oldalfalak előregyártott kezeletlen, natúr nut/féder illesztésű fenyő szerkezetből állnak. Festett garázsaink illusztrációk, melyek ötletet kívánnak adni a faház festéshez.
- 19 mm tömörfa-tető lambéria, extra vastag szarufákkal és kötőgerendákkal
- Skanholz előregyártott statikailag minősített garázstető szerkezete 165 kg/m2 hó teherbírásra méretezve ( bitumenes zsindely tetőfedés esetén)
- Garázstető lejtése 18°
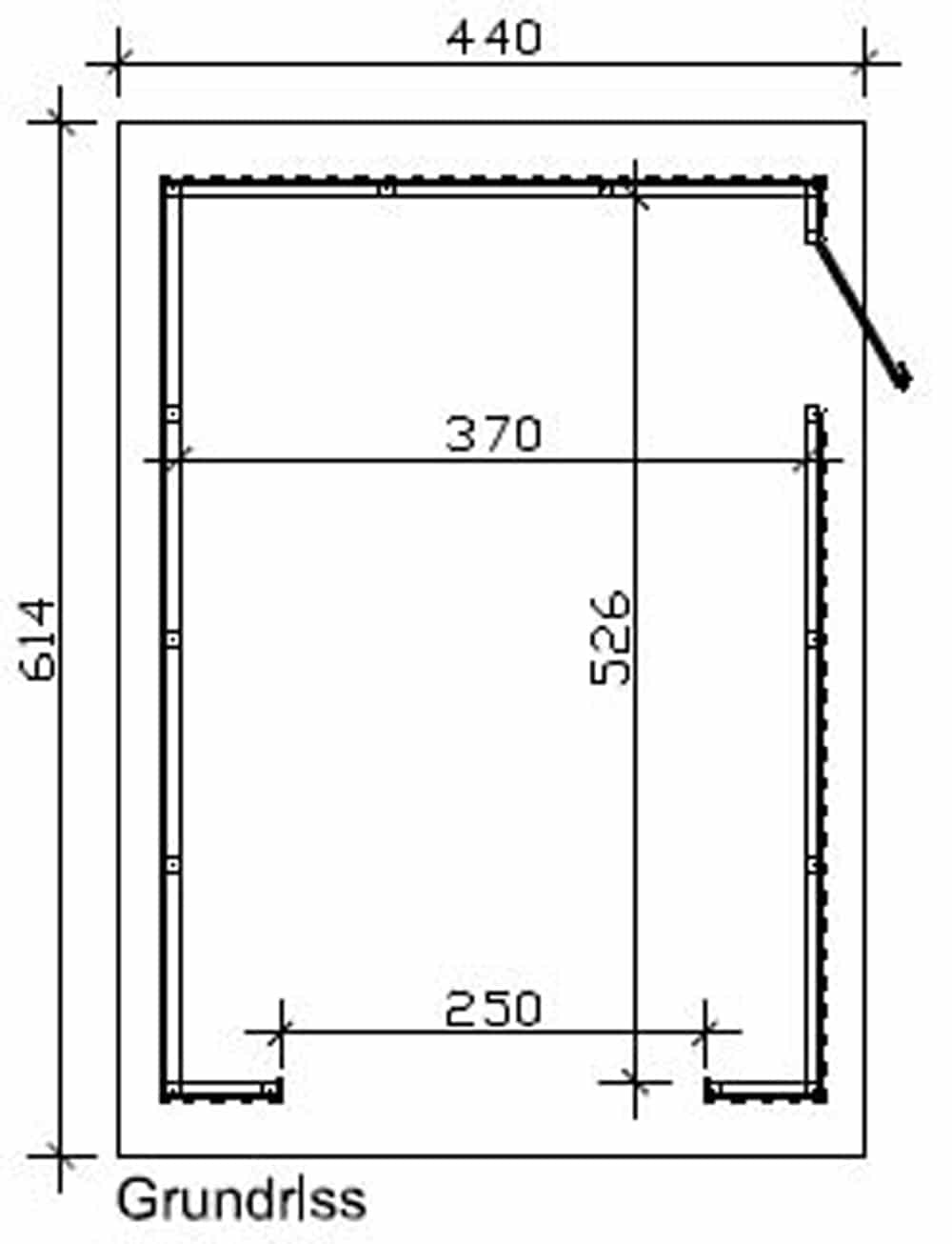
- Teljes tetőméret eresz túllógásokkal együtt: 440 x 614 cm
- Garázs belső nettó szélessége: 370 cm
- Áthaladási szélesség: 250cm
- Áthaladási magasság: 200 cm
- A garázs orommagassága: 298 cm
- Opcionálisan rendelhető garázsajtó mérete 226 x 198 cm méretben
- +1 személyi bejáró, oldalsó egyszárnyú ajtó 86 x 192 cm méretben amely alap esetben is a csomag része
- Valamennyi termékünk lapra szerelve kerül kiszállításra. A csomagolás tartalmazza az összes szüksége szereléket, kötőelemet, részletes összeszerelési útmutatót és a szükséges műszaki rajzokat is !
Szükséges tetőzsindely: 36 m2, nem része az alap csomagnak ! Tetőfedő zsindelyt igény esetén hozzá tudunk csomagolni a faházhoz piros, zöld vagy antracit színben.
Lapra szerelten, minden szükséges kötőelemmel szállítjuk házhoz termékeinket. Lapraszerelt csomagolás mérete: 120 x 480 x 80 cm
A faanyag gyárilag natúr/kezeletlen, melyet szakszerűen 2 réteg vékony lazúrral le kell festeni a tartósság érdekében. Minőségi Remmers lazúrt is tudunk szállítani : Remmers lazúrokért kérjük kattintson ide
Helyszíni összeépítés díja a helyszíntől és a kiválasztott garázs méretétől függően, egyéni megbeszélés alapján.
Tetszőleges színű festésre, bádogos munkára stb. is kérhet ajánlatot.
Ha nem megfelelő Önnek ez a méret, ajánlataink között talál 2 autó részére is alkalmas duplaszéles kialakítású típust is.
Garázsok építése fából, teljes kivitelezést is rendelhet, betonozástól a tetőfedésig, festésig, A-tól Z-ig. Kérjen ajánlatot az egyes munkafázisokra.
Zárt garázsunk gyorsan felépíthető és megvédi autóját az időjárás viszontagságaitól, valamint az illetéktelen kíváncsiskodóktól egyaránt.
Az épületet szerszámtároló kerti faházként, szerszámos faházként is használhatja. Igény szerint a faházhoz további ablakot és ajtót is tudunk felár ellenében szállítani.
További információk
| Méretek | 393 × 579 × 298 cm |
|---|---|
| Ajtó típus | Garázs ajtó nélkül, Garázs ajtóval |
- A garázs kiszállítása lapra szerelten történik. A kiszállításra kerülő összepántolt faanyag /csomag szállítási mérete 120 x 530 x 100 cm; 750 kg zsindely nélkül !
- A mellékelt alapozási rajz alapján a garázs alá a betonlemezt így kell elkészíteni
- A faanyag nem alaktartó ennél a 233-as garázs típusnál ! A faanyag száradása és nedves időben dagadása természetes folyamat.
- A teljes faanyagot szakszerűen le kell festeni jó minőségű vékony lazúrral, ellenkező esetben a faanyag meg fog szürkülni a napsugárzás UV-hatása miatt és a farontók (bogarak; gombák) tönkreteszik a faanyagot . A festés a garancia alapja !
- Amennyiben kéri az alapozástól a festésig vállaljuk a garázs megépítését. Ajánlatokat helyszíntől függően tudunk adni.
Érdekelhetnek még…
Ajánlott kiegészítők
-
Gyártó: faház kiegészítők
Azonnal elvihető
Bitumenes zsindely tetőfedés
9800 FtOpciók választása Ennek a terméknek több variációja van. A változatok a termékoldalon választhatók ki -
Gyártó: Remmers
Azonnal elvihető
-
Gyártó: faház kiegészítők
Esővíz elvezető csatorna faházakhoz
Ártartomány: 36000 Ft - 144000 FtOpciók választása Ennek a terméknek több variációja van. A változatok a termékoldalon választhatók ki










AB_233106









Értékelések
Még nincsenek értékelések.